Königsklasse
Er hat etwas majestätisches, dieser Prachtbau. Der mittlere Baukörper thront über allem, scheint über den Dingen zu schweben. Das gibt der Architektur Leichtigkeit und Harmonie und offenbart praktische Seiten – einen überdachten Eingang und eine überdachte Terrasse. Beides wissen Hausbesitzer im Alltag hoch zu schätzen.
Die eingeschobenen Hauspartien und das auf Stelzen ruhende Obergeschoss verweben sich im Inneren zu einem großzügigen transparenten Wohntraum. Gläserne Wände und riesige Fensterflächen holen so viel Tageslicht herein, dass man beim Interieur mutig auf edle dunkle Farben und Hölzer zugreifen darf. Diese können gern auf der Fassade wiederholt werden, denn die hochwertigen Fassadenplatten gibt es nicht nur in vielen Farben, sondern auch in lebendiger Holzoptik.
Besonders großzügig verglast präsentiert sich das Zentrum des Hauses und Familienlebens – der aus Wohnraum, Essplatz und Küche bestehende Großraum mit phantastischem Ausblick. Ganz gleich, ob draußen der Garten blüht oder der Schnee glitzert, die Natur holt immer wieder andere Stimmungen ins schöne Zuhause.
Ein großer privater Trakt mit Schlafzimmer, Ankleide und Bad ist ebenerdig angeschlossen. Im Schlafraum sorgt die großzügige Eckverglasung des Raumes dafür, dass man eigentlich die Augen gar nicht schließen möchte.
Drei Zimmer unterschiedlicher Größen – alle mit einer gläsernen Wand – entfalten sich unter dem Flachdach im Obergeschoss. Besonderen Luxus verspricht außerdem das Badezimmer, das auf 14 Quadratmetern Wellness pur bietet. Praktisch dagegen ist die kleine Waschküche nebenan.
*Abbildungen zeigen teilweise individuelle Zusatzausstattung.
Hausstandard Vision
Vollständige Baubeschreibung und Materialspezifikation.

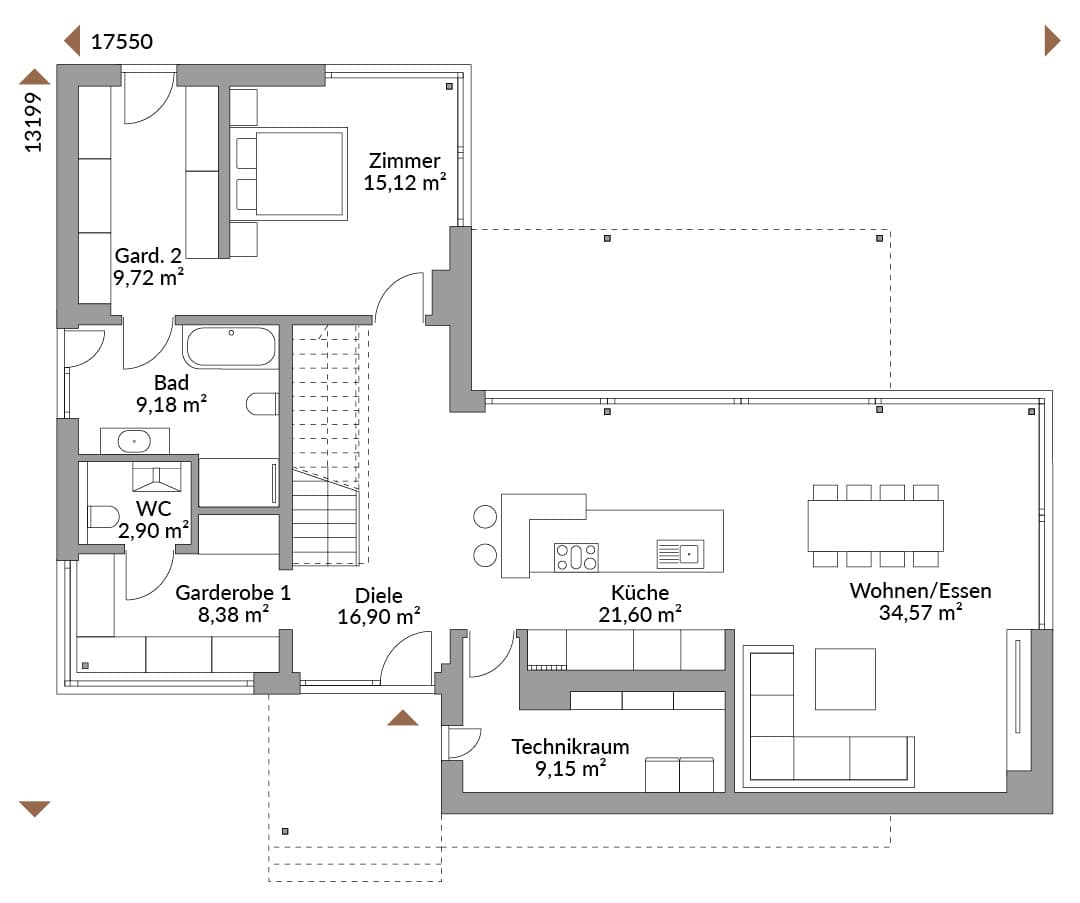
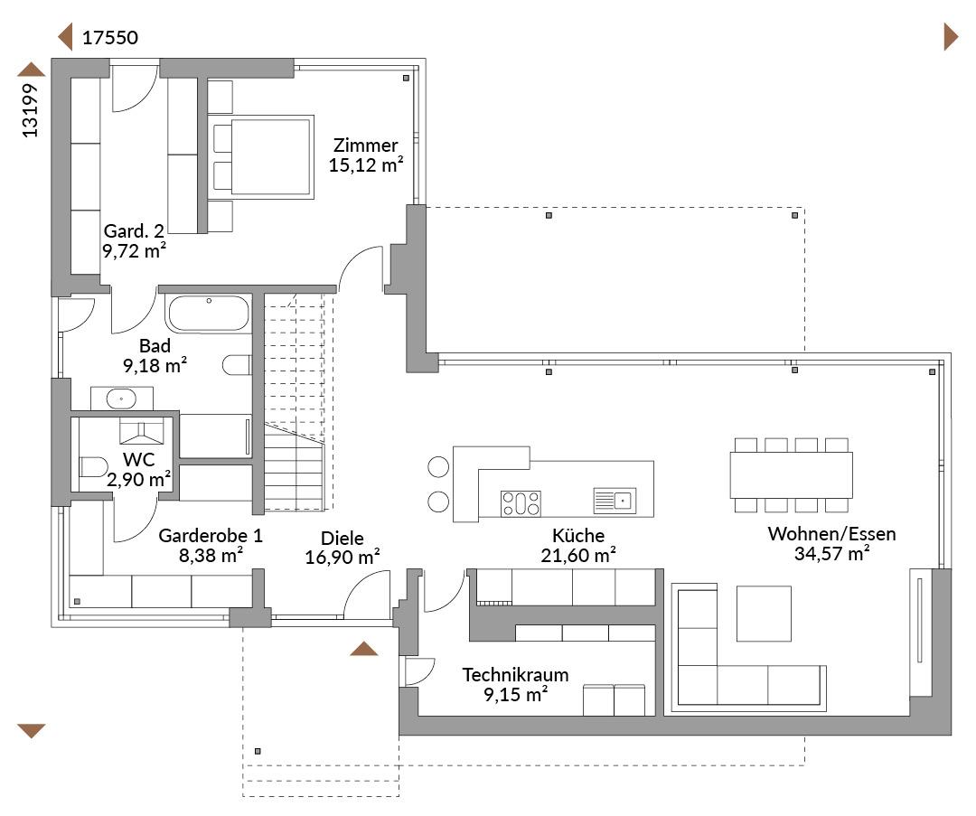
Grundrisse
Kompletter Plan aller Etagen mit Fläche

Unsere Lösungen erleichtern den Alltag, steigern den Komfort und begleiten Sie zuverlässig – vom Aufstehen bis zum Schlafengehen.

Alles aus einer Hand – von der Planung bis zum Bau.
