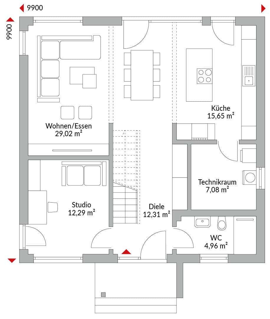
Das Park 161W ist ein Zuhause für alle, die es großzügig mögen und keine Kompromisse wollen. Die Stadtvilla weiß, wo Leben passiert: Wohnen und Essen öffnen sich weit im Erdgeschoss, hell und einladend. Die Küche bietet viel Arbeitsfläche und Raum, damit an der Küchentheke gemeinsam gekocht, geredet und nebenbei organisiert werden kann.
Hinzu kommt ein separates Studio im Erdgeschoss, das sich flexibel anpasst: ruhiges Arbeiten, Gäste, Hobby oder ein Rückzugsort, wenn der Tag mal hektischer war.
Praktisch gelöst: Der Technikraum begehbar von der Küche, ein zusätzliches WC mit Dusche sind nah am Eingang. So bleiben die Wege dennoch kurz, und das Haus bleibt aufgeräumt.
Oben wird es privat und angenehm übersichtlich: drei Zimmer, ein großzügiger Flur und gleich zwei Garderobenbereiche, einer davon als begehbare Ankleide, die Ordnung nicht zum Vergnügen machen.
Das Bad ist großzügig dimensioniert, mit Badewanne, Dusche und Doppelwaschbecken, damit der Morgen und der Abend entspannt starten und enden können.
*Abbildungen zeigen teilweise individuelle Zusatzausstattung.
Hausstandard Today
Vollständige Baubeschreibung und Materialspezifikation.

Grundrisse
Kompletter Plan aller Etagen mit Fläche

Klimafreundlich bauen für die Zukunft unserer Kinder.

Unsere Lösungen erleichtern den Alltag, steigern den Komfort und begleiten Sie zuverlässig – vom Aufstehen bis zum Schlafengehen.

Unsere Badprojekte ansehen
