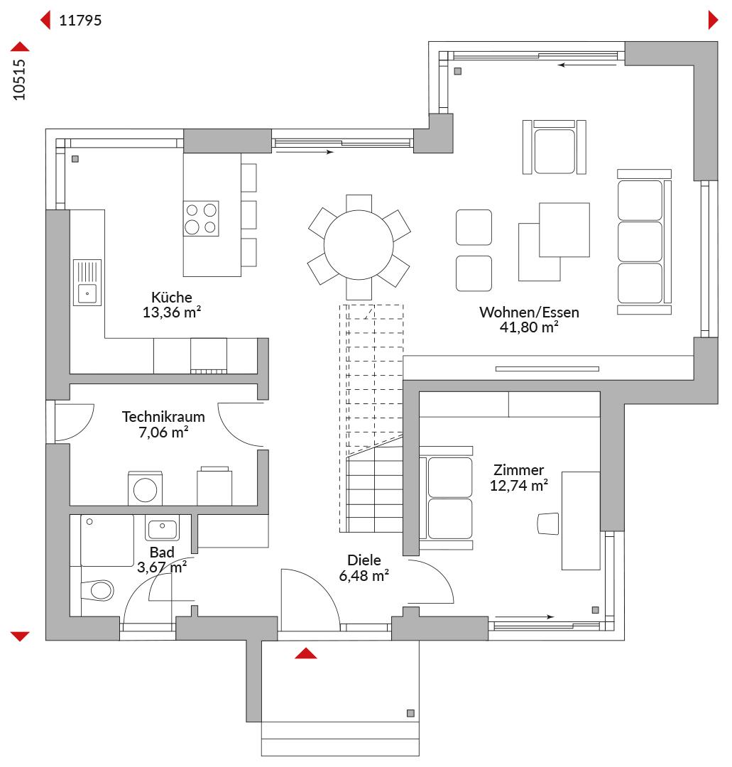
Zweigeschossiges Haus mit Eingangsüberdachung der höheren Haustür und drei Zimmern im Obergeschoss. Hauptschlafzimmer mit begehbarer Ankleide und direktem Zugang zum Bad mit Badewanne, Doppelwaschbecken und Dusche. Das erhöhte Erdgeschoss mit eckverglastem Eckerker und höheren Fenstern ist als offene Küche (ebenfalls mit Eckfensterlösung) / Wohnen/ Essen mit Schiebetüren zur Terrasse konzipiert. Gäste-WC, Technikraum und Diele, Flur, Zeltdach mit breiter Traufe von 60 cm und 22° Dachneigung.
*Abbildungen zeigen teilweise individuelle Zusatzausstattung.
Hausstandard S-Linie
Vollständige Baubeschreibung und Materialspezifikation.

Grundrisse
Kompletter Plan aller Etagen mit Fläche
Willkommen bei der S-Linie von Danwood, der neuen Dimension des Wohlfühlens. Diese exklusive Serie hebt sich nicht nur durch ihr einmaliges architektonisches Design ab, sondern auch durch eine besondere funktionale Gestaltung, die jedem Wohnraum eine außergewöhnliche Qualität verleiht. Jedes Haus unserer S-Linie zeichnet sich durch eine Reihe von besonderen Merkmalen aus, die für ein luxuriöses Wohnerlebnis sorgen.

Unsere Lösungen erleichtern den Alltag, steigern den Komfort und begleiten Sie zuverlässig – vom Aufstehen bis zum Schlafengehen.

Klimafreundlich bauen für die Zukunft unserer Kinder.

Entdecken Sie die Ideen unserer Architekten
