Großzügigkeit und Transparenz vereinen sich in dieser modularen Stadtvilla zu einem durchgestylten modernen Zuhause mit ganz vielen praktischen Seiten. Drei Schlafzimmer, zwei Bäder und ein Gäste-WC, eine große Ankleide und ein herrlich großzügiger Wohnbereich und die offene Küche werden – wie auch die Terrasse – vom einem eleganten Walmdach beschützt. Zu den Highlights des Hauses darf die vor gläsernen Wänden schwebende Treppe gezählt werden.
*Abbildungen zeigen teilweise individuelle Zusatzausstattung.
Hausstandard NEXT
Vollständige Baubeschreibung und Materialspezifikation.

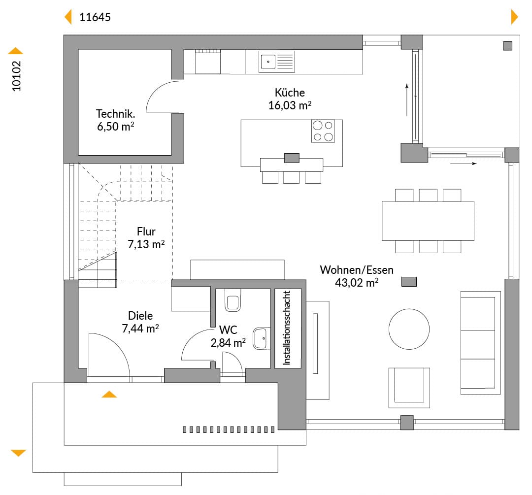
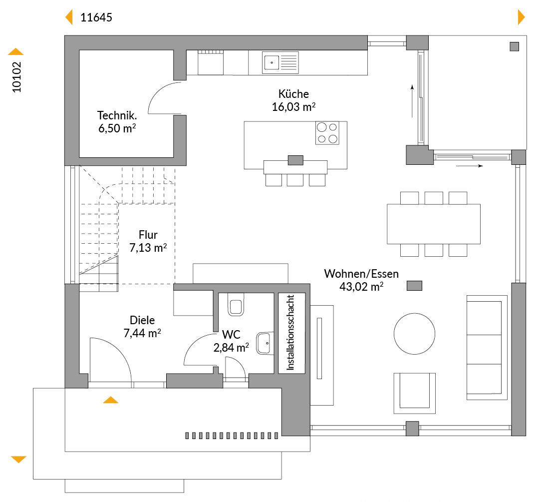
Grundrisse
Kompletter Plan aller Etagen mit Fläche
Das innovative Danwood-Modulbauprogramm bietet smarte schlüsselfertige Modulhäuser in moderner Architektur mit viel Glas, die komplett bis ins Detail im Werk vorgefertigt werden. Sie punkten mit kürzerer Lieferzeit und einer Aufbauzeit von drei Wochen. Ihr Alles-Inklusive-Konzept umfasst modernste Haustechnik, höchste Energieeffizienz und ausgesuchtes Innendesign.

Klimafreundlich bauen für die Zukunft unserer Kinder.

Unsere Lösungen erleichtern den Alltag, steigern den Komfort und begleiten Sie zuverlässig – vom Aufstehen bis zum Schlafengehen.

Alles aus einer Hand – von der Planung bis zum Bau.
