Das Innere der modularen Flachdachvilla besticht durch ein klares und und funktionelles Konzept. Das weitgehend offen gestaltete Erdgeschoss ist dabei gut zoniert. Viel Stauraum bieten Diele und Speisekammer. Im Obergeschoss sind dem Masterschlafraum eine Ankleide und ein Bad angeschlossen, und für die zwei Kinderzimmer gibt es ein Extrabad. Praktisch: Der kleine Abstellraum. Schön: Die Empore mit Fernblick.
*Abbildungen zeigen teilweise individuelle Zusatzausstattung.
Hausstandard NEXT
Vollständige Baubeschreibung und Materialspezifikation.

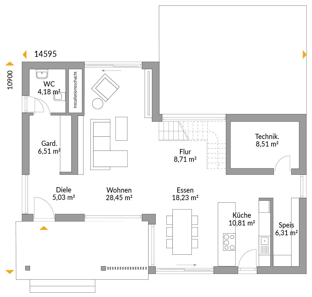
Grundrisse
Kompletter Plan aller Etagen mit Fläche
Das innovative Danwood-Modulbauprogramm bietet smarte schlüsselfertige Modulhäuser in moderner Architektur mit viel Glas, die komplett bis ins Detail im Werk vorgefertigt werden. Sie punkten mit kürzerer Lieferzeit und einer Aufbauzeit von drei Wochen. Ihr Alles-Inklusive-Konzept umfasst modernste Haustechnik, höchste Energieeffizienz und ausgesuchtes Innendesign.

Klimafreundlich bauen für die Zukunft unserer Kinder.

Unsere Lösungen erleichtern den Alltag, steigern den Komfort und begleiten Sie zuverlässig – vom Aufstehen bis zum Schlafengehen.

Alles aus einer Hand – von der Planung bis zum Bau.
