Die kubische Flachdachvilla kann sich von allen Seiten und auf beiden Etagen sehen lassen. Ihre hohen, harmonisch angeordneten Panoramafenster gestalten eine attraktive Rückseite mit Aussicht in den Garten. Besonders jedoch sticht die Front hervor – mit den vorgesetzten Modulen und darauf liegendem Balkon. Seitlich des überdachten Hauseingangs gibt es einen geschützten Platz, z.B. für Fahrräder, Kinderwagen oder eine gemütliche Bank.
*Abbildungen zeigen teilweise individuelle Zusatzausstattung.
Hausstandard NEXT
Vollständige Baubeschreibung und Materialspezifikation.

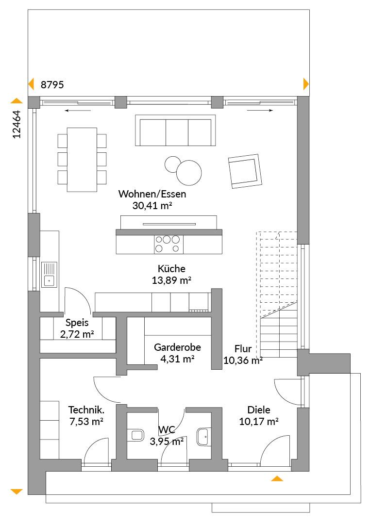
Grundrisse
Kompletter Plan aller Etagen mit Fläche
Das innovative Danwood-Modulbauprogramm bietet smarte schlüsselfertige Modulhäuser in moderner Architektur mit viel Glas, die komplett bis ins Detail im Werk vorgefertigt werden. Sie punkten mit kürzerer Lieferzeit und einer Aufbauzeit von drei Wochen. Ihr Alles-Inklusive-Konzept umfasst modernste Haustechnik, höchste Energieeffizienz und ausgesuchtes Innendesign.

Klimafreundlich bauen für die Zukunft unserer Kinder.

Unsere Lösungen erleichtern den Alltag, steigern den Komfort und begleiten Sie zuverlässig – vom Aufstehen bis zum Schlafengehen.

Alles aus einer Hand – von der Planung bis zum Bau.
