Schlichte Eleganz, klare Linien, luxuriöse Anmutung, zurückgenommener Charme: Wir präsentieren Ihnen unsere zweigeschossige Stadtvilla Family 157 als die große Schwester unseres Family 130. Sie wirkt nicht nur in städtischen Gegenden repräsentativ. Auch auf dem Land erfreut sich diese klassische Form wachsender Beliebtheit. Mit vier Schlafzimmern im Obergeschoss und einem Arbeits- oder weiteren Schlafzimmer bietet die Stadtvilla für quirliges Familienleben auf über 157 m² großzügig Platz. Hier tobt das Leben in all seinen Facetten. Leben, lieben, lachen – und natürlich auch einmal zurückziehen und die Ruhe genießen, wird dank der großzügigen Raumaufteilung garantiert. Unschlagbarer Vorteil auch dieses DAN-WOOD Family-Zweigeschossers ist es wie bei seiner kleinen Schwester, dass dank der Bauweise zwei Vollgeschosse ohne Dachschrägen keine Stellflächenverluste entstehen.
*Abbildungen zeigen teilweise individuelle Zusatzausstattung.
Hausstandard Family
Vollständige Baubeschreibung und Materialspezifikation.

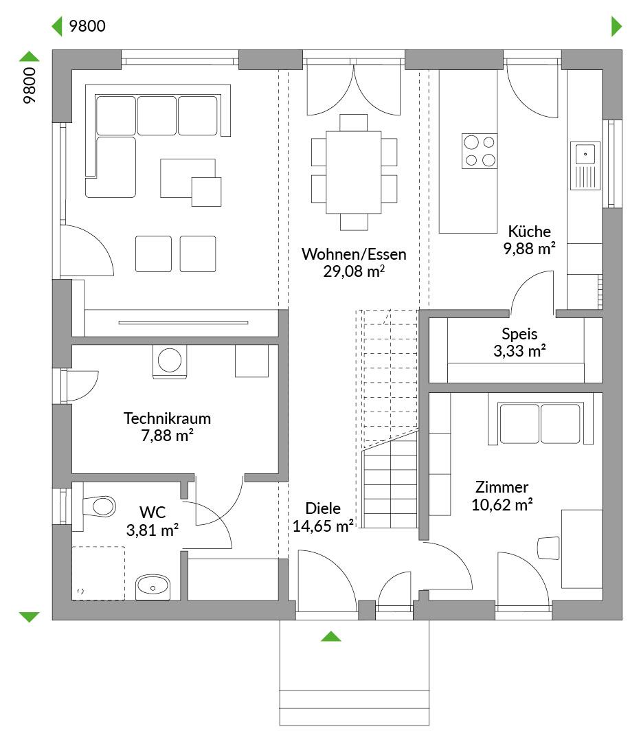
Grundrisse
Kompletter Plan aller Etagen mit Fläche





Mit unserem DAN-WOOD Family-Programm sparen Sie mehrfach: Dank des hohen Vorkonfigurationsgrad am Hauspreis, der klimafreundlichen Bauweise mit günstiger Finanzierung und moderner Haus- und Heiztechnik bei den Heizkosten. Wählen Sie Ihren Wunschhaustyp - ob Bungalow, eineinhalbgeschossiges Haus oder schöner Zweigeschosser.

Klimafreundlich bauen für die Zukunft unserer Kinder.

Unsere Lösungen erleichtern den Alltag, steigern den Komfort und begleiten Sie zuverlässig – vom Aufstehen bis zum Schlafengehen.

Unsere Badprojekte ansehen
