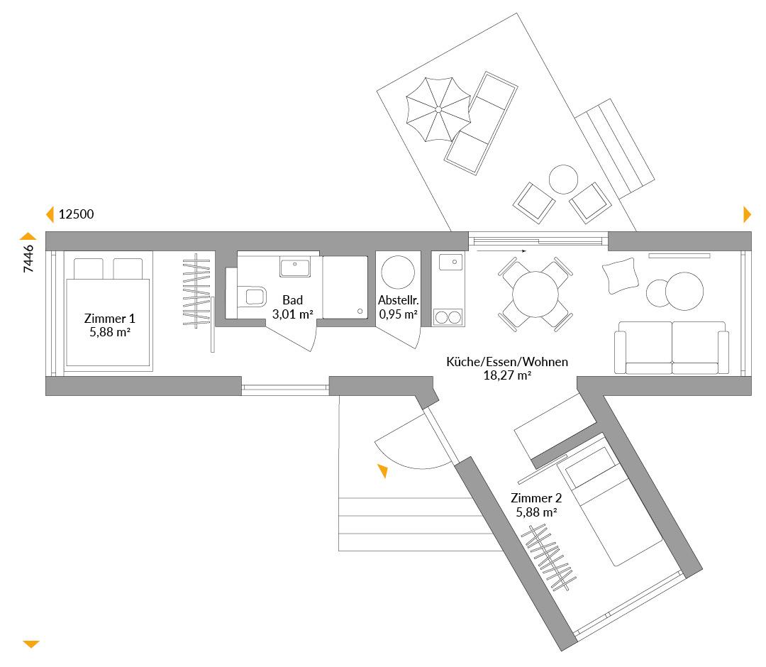
Wenn das Grundstück ein etwas breiteres Haus erlaubt – in diesem Fall reichlich sieben Meter – kann ein zusätzliches schmales S-Modul die Wohnsituation komfortabler gestalten. Ein kleines Zimmer und ein einladender Eingangsbereich werden durch das Andocken dieses Moduls im Vergleich zum elf Quadratmeter kleineren NEXT Holiday 23 S-1 gewonnen. Eine weitere Panorama-Glaswand lässt das Gefühl aufkommen, mitten in der blühenden Landschaft zu sitzen.

Grundrisse
Kompletter Plan aller Etagen mit Fläche






Klimafreundlich bauen für die Zukunft unserer Kinder.

Unsere Lösungen erleichtern den Alltag, steigern den Komfort und begleiten Sie zuverlässig – vom Aufstehen bis zum Schlafengehen.

Seit über 25 Jahren führend im Bau von Fertighäusern.
