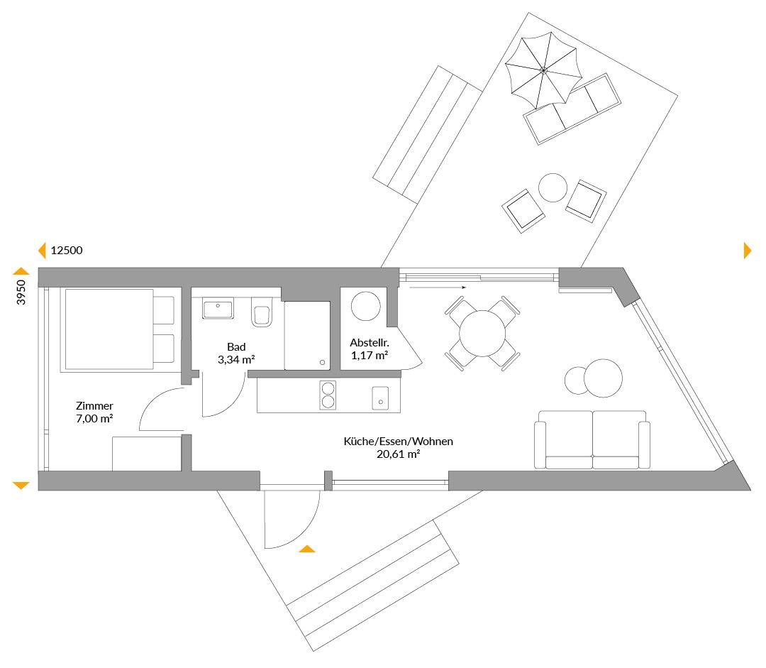
Entspannter entspannen als im Ein-Schlafzimmer-S-Modulhaus lässt es sich im etwas größeren "NEXT Holiday 32 L-1". Bei dieser L-Version bringt ein Meter mehr in der Breite ganze neun Quadratmeter mehr Wohnfläche. Diese machen sich im Schlafzimmer und vor allem im Wohn-/Essbereich bemerkbar. Hier könnten zwei zusätzliche Gäste auf der Schlafcouch übernachten und Platz am Esstisch finden. Auch die Küchenzeile und die Panoramafenster fallen in der L-Version größer aus, so dass dieses minimalistische Ferienhäuschen durchaus für Wochenend-Familienauszeiten geeignet ist.

Grundrisse
Kompletter Plan aller Etagen mit Fläche






Klimafreundlich bauen für die Zukunft unserer Kinder.

Unsere Lösungen erleichtern den Alltag, steigern den Komfort und begleiten Sie zuverlässig – vom Aufstehen bis zum Schlafengehen.

Seit über 25 Jahren führend im Bau von Fertighäusern.
