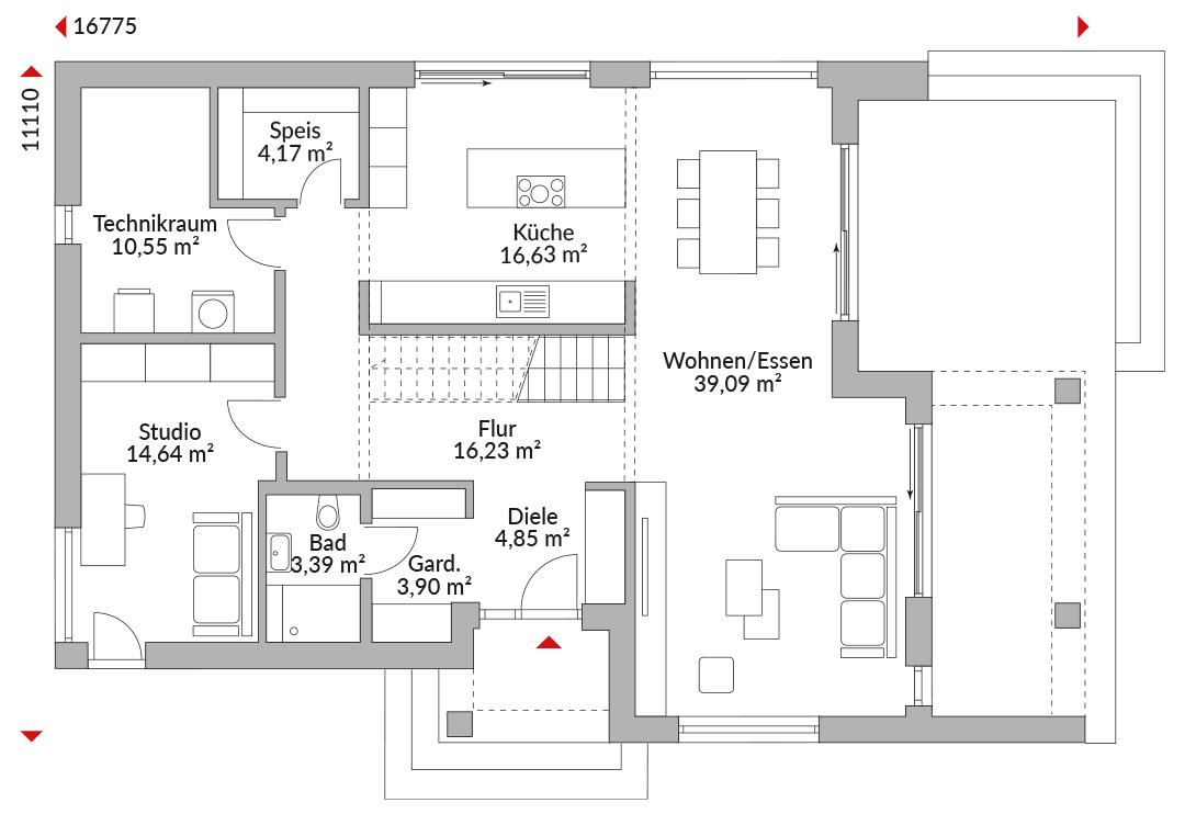
Eineinhalbgeschossiges Haus mit Eingangsüberdachung der höheren Haustür und drei Zimmern im Obergeschoss. Schlafzimmer mit begehbarer Ankleide und Bad en Suite inkl. Doppelwaschbecken, optional freistehender Badewanne sowie Dusche. Zweites Bad im OG mit Dusche. 2 Abstellräume. Bodentiefe Verglasung als Spitz- oder Giebelfensterlösung. Im Erdgeschoss separates Studio.
Das höhere Erdgeschoss mit erhöhter bodentiefer Verglasung ist als offene Küche / Wohnen/ Essen mit Schiebetüren zur Terrasse konzipiert. Speisekammer, Technikraum und Diele mit Garderobe, Gäste-WC mit Dusche. Satteldach mit breiter Traufe von 60 cm des gartenseitigen Giebels, 38° Dachneigung, Kniestock 1,50 m.
*Abbildungen zeigen teilweise individuelle Zusatzausstattung.
Hausstandard S-Linie
Vollständige Baubeschreibung und Materialspezifikation.

Grundrisse
Kompletter Plan aller Etagen mit Fläche
Willkommen bei der S-Linie von Danwood, der neuen Dimension des Wohlfühlens. Diese exklusive Serie hebt sich nicht nur durch ihr einmaliges architektonisches Design ab, sondern auch durch eine besondere funktionale Gestaltung, die jedem Wohnraum eine außergewöhnliche Qualität verleiht. Jedes Haus unserer S-Linie zeichnet sich durch eine Reihe von besonderen Merkmalen aus, die für ein luxuriöses Wohnerlebnis sorgen.

Unsere Lösungen erleichtern den Alltag, steigern den Komfort und begleiten Sie zuverlässig – vom Aufstehen bis zum Schlafengehen.

Klimafreundlich bauen für die Zukunft unserer Kinder.

Entdecken Sie die Ideen unserer Architekten
