Point 157 zeigt sich elegant und wohlproportioniert: Satteldach, geschützter Eingang, große Fensterflächen, dazu der kleine Balkon über der Eingangstür als raffiniertes Detail. Innen beginnt es mit einer großzügigen Diele, die Jacken, Taschen und Schulranzen entspannt auffängt. Das Studio liegt gleich daneben: ideal als Homeoffice, Gästezimmer oder Rückzugsraum, wenn der Alltag einmal leiser werden soll.
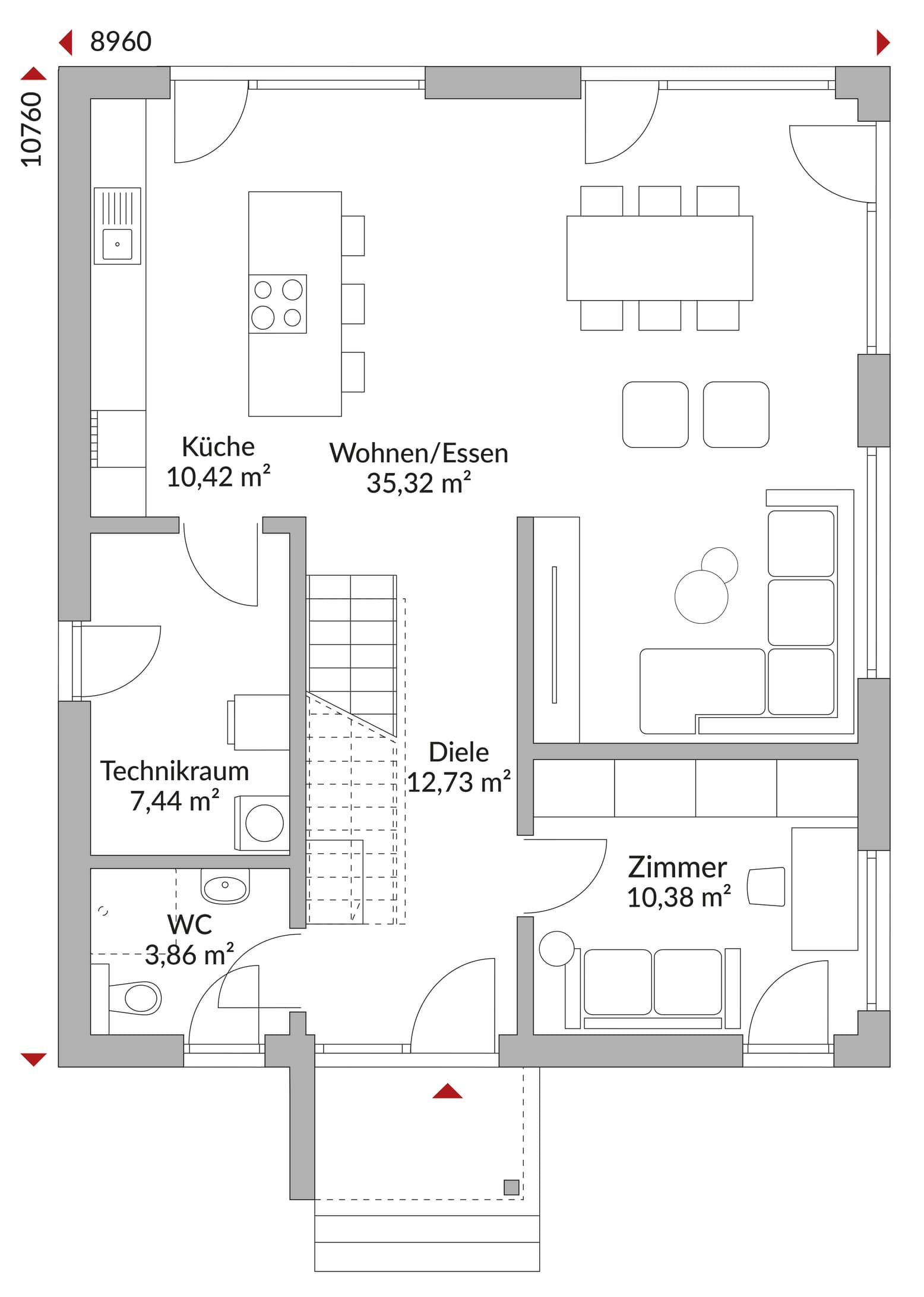
Herzstück im Erdgeschoss ist der offen geplante Bereich aus Wohnen und Essen mit 35,32 m²: hier ist Platz für lange Tischrunden, Spielzeug auf dem Boden und trotzdem genügend Luft im Raum. Die Küche ist direkt angebunden und bleibt mit ihrer eigenen Zone angenehm „bei sich“. Praktisch im Hintergrund: Technikraum und separates WC, genau dort, wo sie gebraucht werden. Oben verteilt sich das Familienleben auf vier Zimmer – vom Elternzimmer bis zum Kinderzimmer, Hobbyraum oder Ankleide-Plus. Das große Bad sorgt für entspanntere Morgen, der breite Flur nimmt Bewegung auf, ohne Enge zu erzeugen.
*Abbildungen zeigen teilweise individuelle Zusatzausstattung.
Hausstandard Today
Vollständige Baubeschreibung und Materialspezifikation.

Grundrisse
Kompletter Plan aller Etagen mit Fläche

Klimafreundlich bauen für die Zukunft unserer Kinder.

Unsere Lösungen erleichtern den Alltag, steigern den Komfort und begleiten Sie zuverlässig – vom Aufstehen bis zum Schlafengehen.

Unsere Badprojekte ansehen
