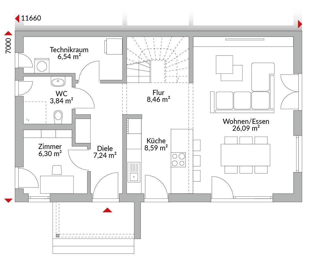
Doppelhaushälfte mit fünf Zimmern, Ankleide, Küche, Bad, Gäste-WC, Technikraum und Diele. Integrierte Flachdach-Eingangsüberdachung mit Seitenwand. Satteldach mit 25° Dachneigung, Kniestock 1,75 m und Flachdachgaube.
*Abbildungen zeigen teilweise individuelle Zusatzausstattung.
Hausstandard Today
Vollständige Baubeschreibung und Materialspezifikation.

Grundrisse
Kompletter Plan aller Etagen mit Fläche

Klimafreundlich bauen für die Zukunft unserer Kinder.

Unsere Lösungen erleichtern den Alltag, steigern den Komfort und begleiten Sie zuverlässig – vom Aufstehen bis zum Schlafengehen.

Unsere Badprojekte ansehen
