Es ist wie bei einem Diamanten, dessen Brillanz sich erst in einer schönen Fassung voll entfaltet: Der weiße Rahmen großformatiger Fassadenplatten fängt die Leichtigkeit der Architektur ein, gibt ihr Struktur und setzt ein klares Statement.
*Abbildungen zeigen teilweise individuelle Zusatzausstattung.
Hausstandard Vision
Vollständige Baubeschreibung und Materialspezifikation.

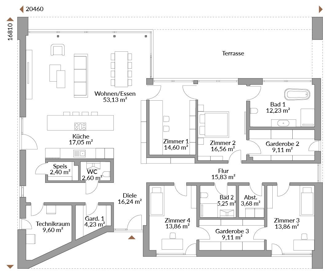
Grundrisse
Kompletter Plan aller Etagen mit Fläche






Unsere Lösungen erleichtern den Alltag, steigern den Komfort und begleiten Sie zuverlässig – vom Aufstehen bis zum Schlafengehen.

Alles aus einer Hand – von der Planung bis zum Bau.
