Das Perfect 125 S verbindet das entspannte Wohnen auf einer Ebene mit dem charakteristischen Auftritt der S-Linie. Schon außen wirkt das Haus wie aus einem Guss: klare Linien, moderne Traufe, präzise Details, dazu großzügige Glasflächen, die den Garten sichtbar in den Alltag holen.
Innen zeigt sich der Unterschied im Raumgefühl: ein höheres Erdgeschoss schafft spürbar mehr Luft über dem Kopf, höhere Türen und eine erhöhte Fenster- und Außentürhöhe unterstreichen die Wertigkeit in jedem Durchgang.
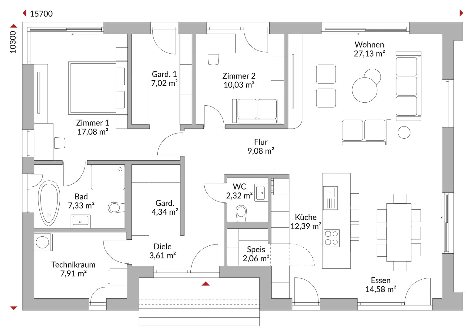
Wohnen und Essen sind offen und hell zoniert, die Küche bleibt als offener Arbeitsbereich angenehm sortiert und wird durch eine Speisekammer ergänzt.
Zwei Zimmer geben Freiheit für Schlafen, Arbeiten oder Gäste. Wannenbad mit freistehender Badewanne und Dusche sowie ein separates WC schaffen Wellness-Routinen.
Technikraum, Diele, Flur und zwei Garderobenbereiche halten den Wohnraum frei, weil alles seinen Platz bekommt.
Typisch S-Linie sind außerdem die Eckverglasungen, in diesem Falle im Schlafzimmer und höhere Terrassenschiebetüren als ruhige, großzügige Verbindung nach draußen, ergänzt durch eine stärkere Wärmedämmung für ein souveränes Wohnklima.
*Abbildungen zeigen teilweise individuelle Zusatzausstattung.
Hausstandard S-Linie
Vollständige Baubeschreibung und Materialspezifikation.

Grundrisse
Kompletter Plan aller Etagen mit Fläche
Willkommen bei der S-Linie von Danwood, der neuen Dimension des Wohlfühlens. Diese exklusive Serie hebt sich nicht nur durch ihr einmaliges architektonisches Design ab, sondern auch durch eine besondere funktionale Gestaltung, die jedem Wohnraum eine außergewöhnliche Qualität verleiht. Jedes Haus unserer S-Linie zeichnet sich durch eine Reihe von besonderen Merkmalen aus, die für ein luxuriöses Wohnerlebnis sorgen.

Unsere Lösungen erleichtern den Alltag, steigern den Komfort und begleiten Sie zuverlässig – vom Aufstehen bis zum Schlafengehen.

Klimafreundlich bauen für die Zukunft unserer Kinder.

Entdecken Sie die Ideen unserer Architekten
