Ab ins Freie! Das großzügig überdachte Sonnendeck lockt nach draußen – zum Essen, zum Relaxen, zum Spielen mit Kindern oder Enkeln. Die dekorative Lamellenwand spendet zusätzlichen Schatten oder bewährt sich als Windschutz. Praktisch ist der Zugang zur Terrasse über eine platzsparende Schiebetür, die sich selbst im geöffneten Zustand nie in den Weg stellt.
*Abbildungen zeigen teilweise individuelle Zusatzausstattung.
Hausstandard NEXT
Vollständige Baubeschreibung und Materialspezifikation.

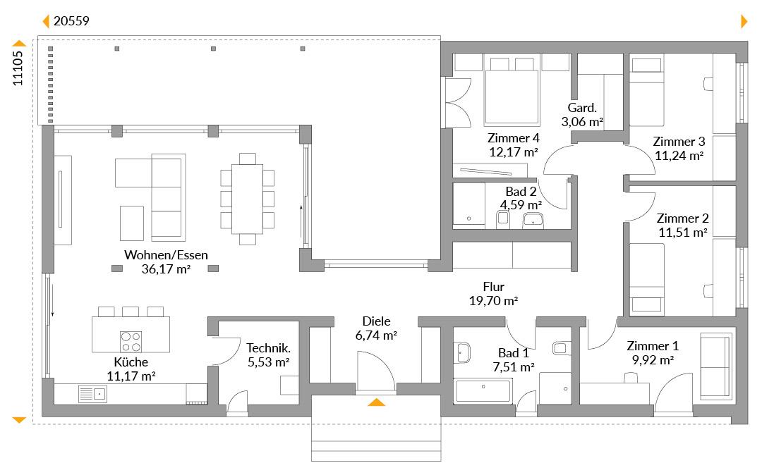
Grundrisse
Kompletter Plan aller Etagen mit Fläche

Das innovative Danwood-Modulbauprogramm bietet smarte schlüsselfertige Modulhäuser in moderner Architektur mit viel Glas, die komplett bis ins Detail im Werk vorgefertigt werden. Sie punkten mit kürzerer Lieferzeit und einer Aufbauzeit von drei Wochen. Ihr Alles-Inklusive-Konzept umfasst modernste Haustechnik, höchste Energieeffizienz und ausgesuchtes Innendesign.

Klimafreundlich bauen für die Zukunft unserer Kinder.

Unsere Lösungen erleichtern den Alltag, steigern den Komfort und begleiten Sie zuverlässig – vom Aufstehen bis zum Schlafengehen.

Alles aus einer Hand – von der Planung bis zum Bau.
