Drei Grundrissvarianten stehen zur Wahl… In jedem Falle ist man mit diesem Bungalow im Alter oder als Kleinfamilie up-to-date. Die durchdachten Raumaufteilungen gewährleisten individuelle Freiräume eines jeden Bewohners genauso wie die vielfältigen Möglichkeiten, mit Freunden und Familie zusammen zu sein. Bis zu drei Zimmer zur individuellen Verfügung ermöglichen auch ein Homeoffice, Platz für Hobbys oder Gästezimmer. Bodentiefe Fenster schaffen schöne Blickachsen in den Garten.
*Abbildungen zeigen teilweise individuelle Zusatzausstattung.
Hausstandard Family
Vollständige Baubeschreibung und Materialspezifikation.

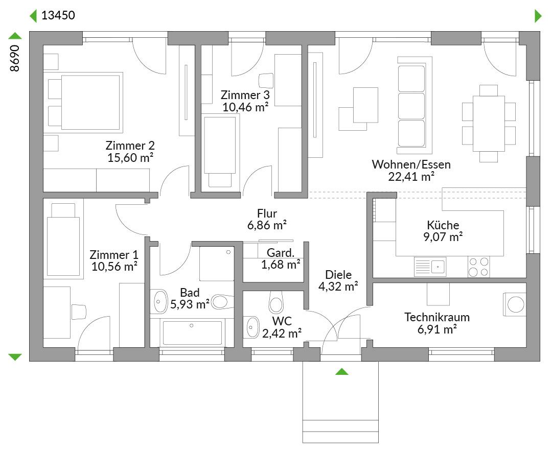
Grundrisse
Kompletter Plan aller Etagen mit Fläche





Mit unserem DAN-WOOD Family-Programm sparen Sie mehrfach: Dank des hohen Vorkonfigurationsgrad am Hauspreis, der klimafreundlichen Bauweise mit günstiger Finanzierung und moderner Haus- und Heiztechnik bei den Heizkosten. Wählen Sie Ihren Wunschhaustyp - ob Bungalow, eineinhalbgeschossiges Haus oder schöner Zweigeschosser.

Klimafreundlich bauen für die Zukunft unserer Kinder.

Unsere Lösungen erleichtern den Alltag, steigern den Komfort und begleiten Sie zuverlässig – vom Aufstehen bis zum Schlafengehen.

Unsere Badprojekte ansehen
