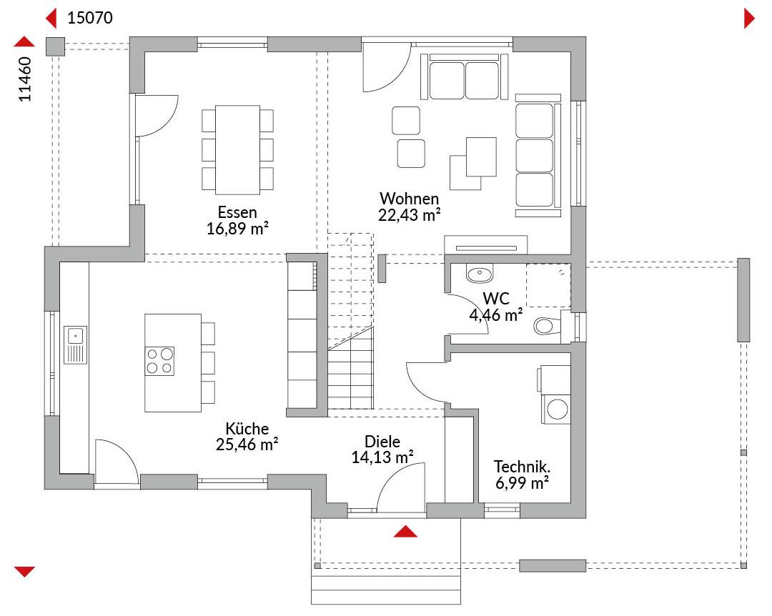
Eineinhalbgeschossiges Haus mit vier Zimmern, Ankleide, offener Küche, Bad, Gäste-WC, Technikraum, Diele sowie mit integriertem Carport mit Eingangsüberdachung und Terrassenüberdachung. Versetzte Pultdächer mit 25° Dachneigung, Kniestock 1,75 m und 1,424 m. Carport mit Flachdach.
*Abbildungen zeigen teilweise individuelle Zusatzausstattung.
Hausstandard Today
Vollständige Baubeschreibung und Materialspezifikation.

Grundrisse
Kompletter Plan aller Etagen mit Fläche

Klimafreundlich bauen für die Zukunft unserer Kinder.

Unsere Lösungen erleichtern den Alltag, steigern den Komfort und begleiten Sie zuverlässig – vom Aufstehen bis zum Schlafengehen.

Unsere Badprojekte ansehen
