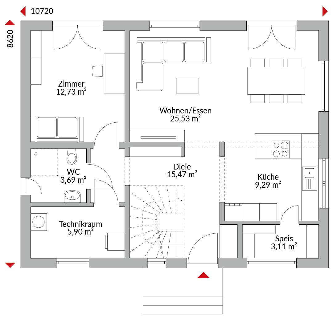
Zweigeschossige Stadtvilla mit vier Zimmern, offener Küche, Speisekammer, geräumigem Wohn-/Essbereich, Gäste-WC, Technikraum und Diele, Bad und Ankleide im Obergeschoss, Zeltdach mit 22° Dachneigung.
*Abbildungen zeigen teilweise individuelle Zusatzausstattung.
Hausstandard Today
Vollständige Baubeschreibung und Materialspezifikation.

Grundrisse
Kompletter Plan aller Etagen mit Fläche

Klimafreundlich bauen für die Zukunft unserer Kinder.

Unsere Lösungen erleichtern den Alltag, steigern den Komfort und begleiten Sie zuverlässig – vom Aufstehen bis zum Schlafengehen.

Unsere Badprojekte ansehen
